Graves of Kate Burke Beaver and Edith Agnes Ecker.
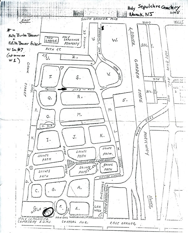
I was directed to this cemetery by the death certificate of Edith and was pleased to learn from cemetery records that her mother Kate was buried here as well in the same grave: W1a #7.
There are three major old Newark Cemeteries near each other and all have our ancestors in them. Holy Sepulcher has Kate and Edith and another Ecker male who married a Catholic girl. There are additional Eckers in Fairmont including my Great-great Grandparents Ecker. Woodland was originally used by Newark's Germans. In poor repair today it contains many of the Ecker family including some of my GGG Uncles.

The orange dots on the close-up map below show the approximate gravesites of Kate and Edith in Holy Sepulcher, and Eckers in Fairmont. The lower two of the latter are William Ecker and his wife Hannah Squire Ecker. William is buried separately in a Civil War Veteran's section.

Below give my best approximation of where this unmarked grave is located.


When I visited the cemetery in 2007, I was given the following map where "X" was said to mark the spot. However, the grave numbering system was confusing, and it took me a while to figure out where I was supposed to look. The secret is that Section W1a is not the same as Section W1. I will do my best to make it easier for you.
